Architektura
zrealizujemy Twoją wizję.
Inwentaryzacja
zmierzymy dla Ciebie każdą powierzchnię.
Projektowanie
zaprojektujemy dla Ciebie wszystko.
Termowizja
sprawdź, czy nie tracisz pieniędzy na ogrzewaniu.
Hale Stalowe
wykonamy każde zlecenie
Wykonawstwo
zrealizujemy Twoje marzenia.

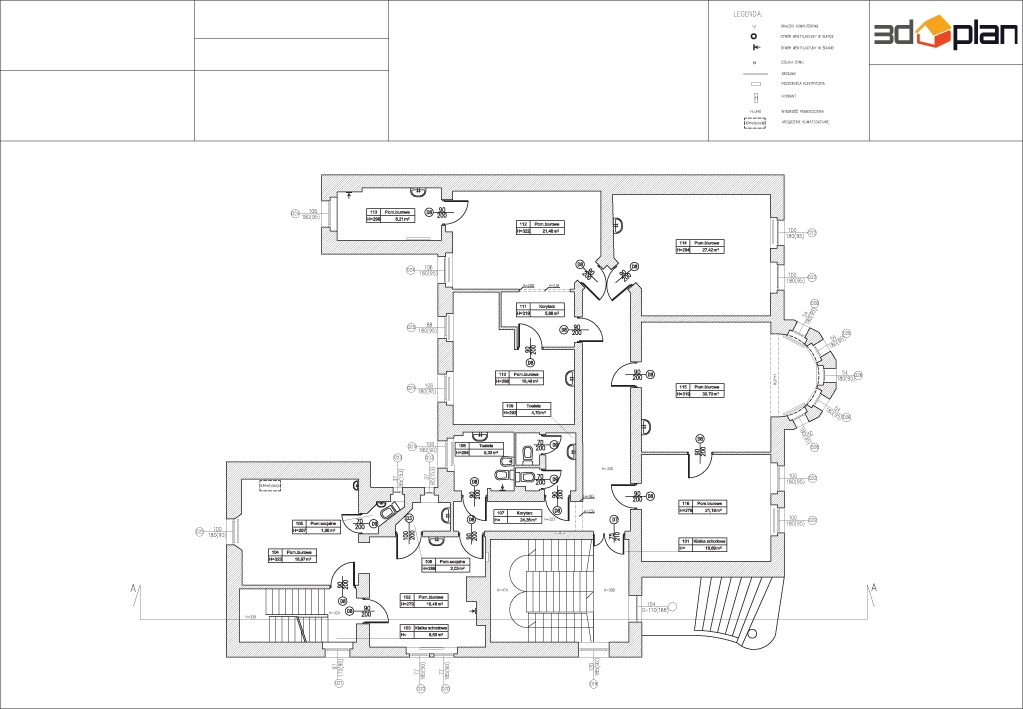
02. Inwentaryzacje

Od czasu powstania firma 3D Plan Sp. z o.o. Sp. k. wykonała pomiary budynków o powierzchni około 450.000,00 m2, w każdym województwie.

 

Współpracujemy między innymi z:
Orange, TP, PZU, PGNiG, OPCO, AiC, BORGA, Urzędami Miasta: w Gdyni, Gdańsku, Tczewie, Bydgoszczy, Łodzi, Gorzowie Wielkopolskim itd. oraz z osobami prywatnymi, dużymi i małymi firmami, instytucjami i każdą osobą zainteresowaną współpracą z nami.

 

Inwentaryzacje obejmują:

  • projektowanie,
  • aktualizację dokumentacji,
  • dokumentację do sprzedaży,
  • inwentaryzację do celów podatkowych,
  • sprostowanie udziałów,
  • przebudowę,
  • rozbiórkę budynku,
  • projektowanie wnętrz,
  • pomiar podwykonawczy,
  • przygotowanie pod audyt energetyczny,
  • sporządzenie projektu podziału nieruchomości budynku,
  • inne.
Przykładowe realizacje
      
Wyślij do nas zapytanie
Imię i nazwisko
Telefon
Adres e-mail
Temat
Dodaj załącznik
Kod z obrazka
Treść wiadomości
wyślij formularz

Zobacz również

01. Architektura
Architektura
03. Projekty
Projekty
04. Termowizja
Termowizja
05. Hale Stalowe
Hale Stalowe
06. Wykonawstwo
Wykonawstwo